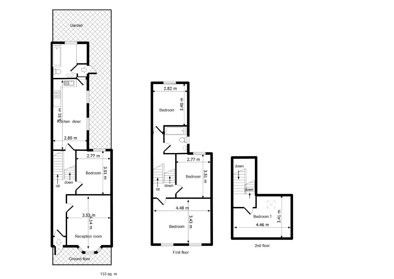
Spacious Five-Bedroom Home with Private Garden
This generously sized residence offers five double bedrooms, ideal for families or professional sharers. The property includes:
A bright and welcoming reception room
A spacious kitchen/dining area perfect for entertaining
Two bathrooms
A private garden
Prime Location Situated just moments from Bellenden Road and Lordship Lane, with selection of shops, cafés, bars, and restaurants.
Peckham Rye and East Dulwich stations offer direct services to London Bridge, making travel into the City swift and convenient. Denmark Hill station provides further connectivity, with routes to Victoria, Blackfriars, and Clapham Junction—ideal for professionals commuting across London or beyond.
For further information on this property please call 020 7732 3999 or e-mail admin@kushymove.com



